Carver
All On
Clear All
First Story
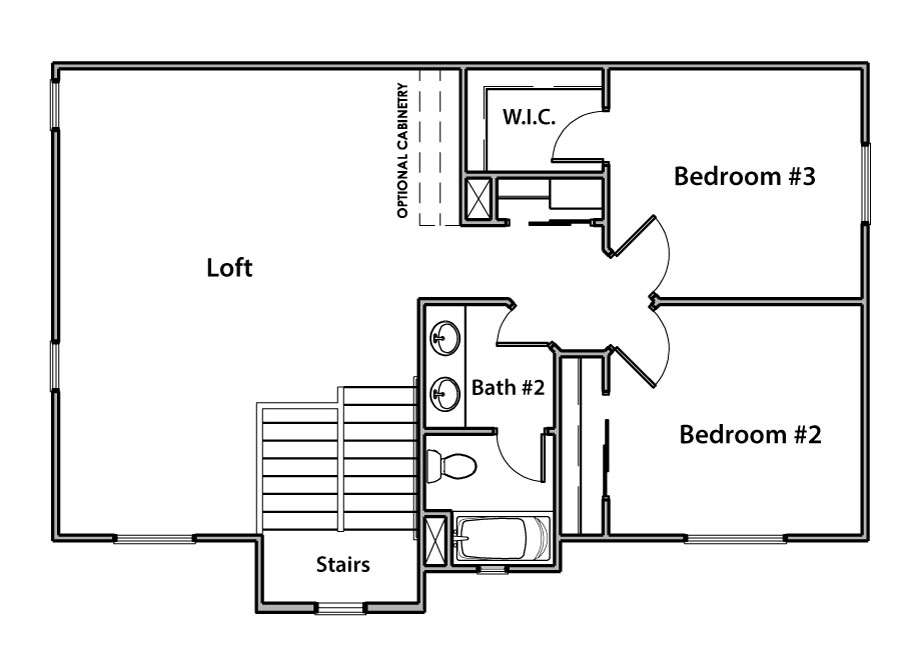
Bedroom 4 With Loft
Covered Balcony
Secondary Suite